Kam & Bronotte Makelaars
Kam & Bronotte Makelaars

Te koop: Langeoog bnr 10: 2^1kap woning, 3894 LB Zeewolde

€ 695.000,- v.o.n.

Beschrijving

Een UNIEKE kans: een nieuwe Twee-onder-een-kap-woning aan VAARwater, met garage en 2 parkeerplaatsen op eigen terrein: Wonen alsof je elke dag op vakantie bent!

- ENGLISH TEXT BELOW -

* Uitstekend bereikbaar: 30 autominuten Amersfoort, 40 autominuten Utrecht, 44 autominuten Amsterdam

Deze nog te bouwen twee-onder-een-kapwoning ligt in het unieke project Waterrijck in Zeewolde: modern wonen aan vaarwater, met comfort, duurzaamheid en rust als uitgangspunt.

De woning ligt op een perceel eigen grond van 257 m2 PLUS een extra perceel van 25 m2 eigen water waar een steiger voor uw boot mogelijk is.

Omschrijving:
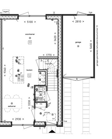
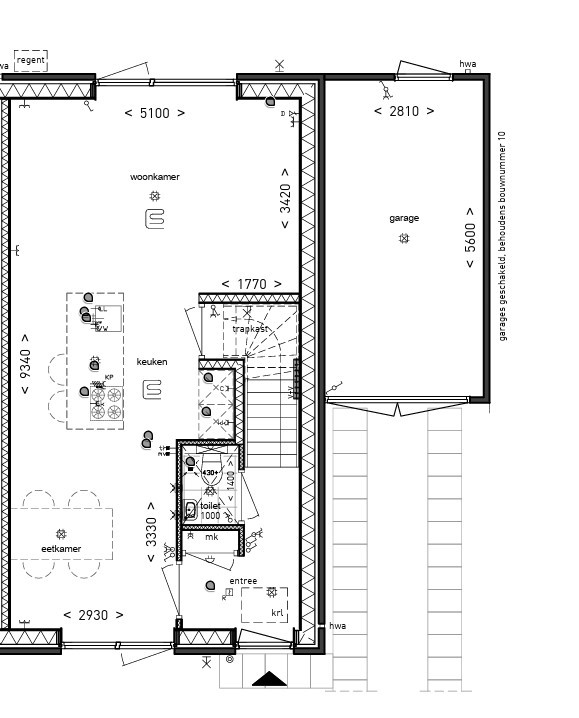
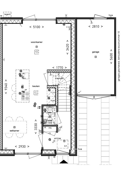
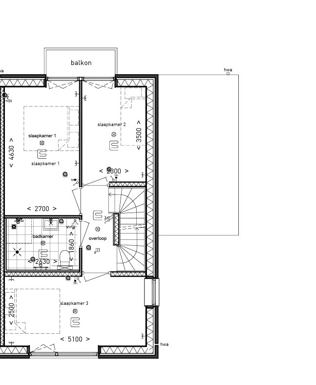
Royale leefruimte verdeeld over drie verdiepingen
Lichte tuingerichte woonkamer met grote raampartijen en zicht op de tuin en water
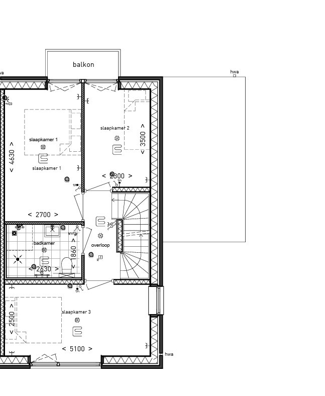
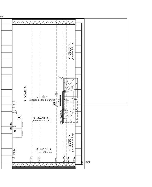
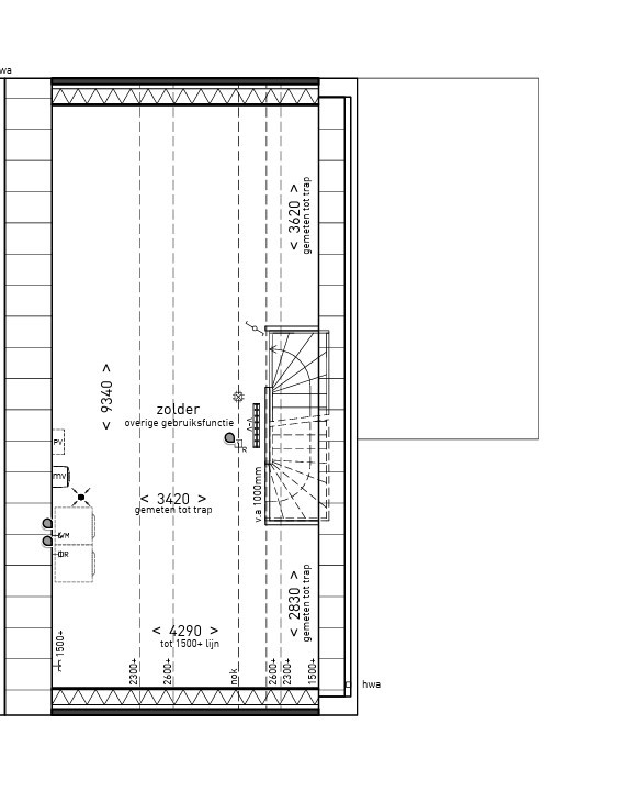
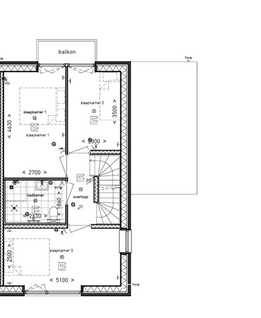
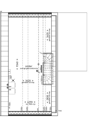
3 slaapkamers + vaste trap naar ruime tweede verdieping met mogelijkheden voor extra slaapkamer(s)
Privé garage en eigen oprit voor 2 auto's
Duurzaam gebouwd met zonnepanelen, vloerverwarming, stadsverwarming en energielabel A++
Screens tegen oververhitting en nestkasten voor biodiversiteit

Meerdere uitbreidingen zijn mogelijk, waaronder het vergroten van de woonkamer met bijvoorbeeld dubbele tuindeuren!

In Waterrijck wonen betekent wonen in een groene, waterrijke omgeving waar het buitenleven centraal staat. Grote ramen halen het licht en landschap naar binnen, met elk seizoen een ander uitzicht. De woning is ontworpen met oog voor comfort én toekomstbestendigheid.

Locatie en omgeving:
* Direct aan het water, met wandelpaden en groen rondom
* Via de sluis vaar je met de boot vanuit je achtertuin zo het Wolderwijd op
* Nabij Harderwijk en de Veluwe: natuur, recreatie en cultuur binnen handbereik
* Watersportmogelijkheden in de buurt: zeilen, suppen, varen
* Winkels, scholen en voorzieningen in Zeewolde op korte afstand
* Uitstekend bereikbaar: 30 autominuten Amersfoort, 40 autominuten Utrecht, 44 autominuten Amsterdam

Voordelen van deze nieuwbouw-woning:
+ Gasloos, energiezuinig en onderhoudsarm
+ Woningborg-garantiecertificaat
+ Volledig naar eigen wens af te werken
+ Hoog wooncomfort en lage energielasten

Bouwnummer 10 is een unieke kans om te wonen in een moderne, duurzame woning op een prachtige plek. Wil jij hier wonen? Neem dan contact met ons op of bezoek de projectwebsite www.woneninwaterrijck.nl voor meer informatie.

ENGLISH TEXT
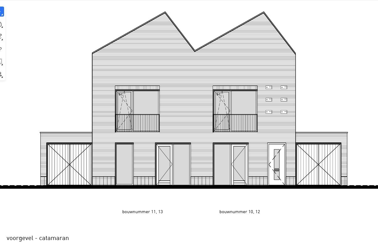
A UNIQUE opportunity: a newly built semi-detached home directly on the water, with a garage and 2 private parking spaces — live as if you're on holiday every day!

Excellent accessibility: 30 minutes to Amersfoort, 40 minutes to Utrecht, 44 minutes to Amsterdam

This soon-to-be-built semi-detached property is part of the unique Waterrijck development in Zeewolde: modern waterfront living with comfort, sustainability, and tranquillity at its core.

The home sits on a privately owned plot of 257 m², PLUS an additional 25 m² private water parcel, where a private jetty for your boat is possible.

Property features:
Spacious living area spread over three floors
Bright, garden-facing living room with large windows and views of the garden and water
3 bedrooms + fixed staircase to a large second floor with potential for additional bedroom(s)
Private garage and driveway for 2 cars
Sustainable construction with solar panels, underfloor heating, district heating, and energy label A++
Sun screens to prevent overheating and nesting boxes to support biodiversity
Several extension options are available, including expanding the living room and adding double French doors to the garden!

Living in Waterrijck means living in a green, water-rich setting where outdoor living takes center stage. Large windows bring in natural light and connect the home to its surroundings, offering beautiful seasonal views. The home is designed with comfort and future sustainability in mind.

Location & surroundings:
Directly on the water, surrounded by walking paths and green spaces
Via the lock, you can sail straight from your backyard onto the Wolderwijd lake
Close to Harderwijk and the Veluwe: nature, recreation, and culture nearby
Watersport options: sailing, paddleboarding, boating
Shops, schools, and facilities in Zeewolde at short distance
Excellent accessibility: 30 min to Amersfoort, 40 min to Utrecht, 44 min to Amsterdam

Advantages of this new-build home:
Gas-free, energy-efficient, and low maintenance
Woningborg warranty certificate
Fully finished to your own taste and style
High residential comfort and low energy costs

Plot number 10 is a unique opportunity to live in a modern, sustainable home in a stunning waterfront location. Would you like to live here? Contact us or visit the project website www.woneninwaterrijck.nl for more information.

Kenmerken

Overdracht
Koopsom € 695.000,- v.o.n.
Aanvaarding In overleg
Laatste wijziging Donderdag 6 november 2025
Bouw
Type object Eengezinswoning, woonhuis, twee onder een kap woning
Soort bouw Nieuwbouw
Bouwjaar 2026
Dakbedekking Dakpannen
Type dak Zadeldak
Isolatievormen Dakisolatie
Dubbel glas
Muurisolatie
Vloerisolatie
Oppervlaktes en inhoud
Woonoppervlakte 135 m²
Inhoud 500 m³
Oppervlakte externe bergruimte 15 m²
Oppervlakte gebouwgebonden buitenruimte 2 m²
Tuinoppervlakte 170 m²
Indeling
Aantal bouwlagen 3
Aantal kamers 5 (waarvan 3 slaapkamers)
Locatie
Ligging Aan vaarwater
Aan water
In woonwijk
Tuin
Type Achtertuin
Hoofdtuin Ja
Oriëntering Zuidoost
Staat Dient nog te worden aangelegd.
Tuin 2 - Type Achtertuin
Tuin 2 - Staat Dient nog te worden aangelegd.
Energieverbruik
Energielabel A++
Uitrusting
Aantal parkeerplaatsen 2
Verwarmingssysteem Stadsverwarming
Vloerverwarming (gedeeltelijk)
Glasvezelaansluiting aanwezig Ja
Tuin aanwezig Ja
Heeft zonwering Ja
Heeft zonnecollectoren Ja
Heeft ventilatie Ja
Neem contact met mij op
Sluiten

Recent bekeken